Es un conjunto de documentos y planos que detallan el diseño y la planificación de un espacio construido, abarcando aspectos estéticos, funcionales y técnicos como la distribución de espacios y la selección de materiales. Su objetivo es satisfacer las necesidades del cliente, cumplir con las normativas y considerar la sostenibilidad. Un buen proyecto es clave para guiar la construcción y asegurar la viabilidad del espacio.
Se diseñó y construyó un baño completo en la planta baja de una vivienda, adaptado para un adulto mayor con problemas de movilidad. Ubicado cerca de una habitación previamente adaptada, el baño fue planificado con criterios de accesibilidad, como una puerta ancha sin umbrales y espacio suficiente para maniobrar con silla de ruedas. Incluye un inodoro con barras de apoyo, un lavabo accesible y una ducha nivelada con controles fáciles de usar. Además, el suelo es antideslizante, la iluminación adecuada e incluye interruptores accesibles. El diseño tiene como objetivo mejorar la autonomía, seguridad y comodidad del usuario, facilitando su uso también para los enfermeros.
La propuesta de vivienda en San Miguel de Allende combina tradición y modernidad, creando un espacio acogedor para la lectura y la recreación, integrado con el paisaje y el club de golf cercano. Se utilizan materiales locales para mantener la autenticidad y reducir costos, mientras que el diseño interior aprovecha la luz natural y las vistas para crear un ambiente cómodo. Los planos aseguran una distribución eficiente, adaptada a las necesidades del cliente, y las fachadas armonizan con el entorno. Además, se presentan renders de alta calidad para mostrar cómo el diseño se integra con el paisaje y los acabados.
El proyecto consiste en convertir una casa de un piso en un espacio multifuncional para almacenamiento, reparación, venta y distribución de mercancías, además de oficinas para control operativo. La remodelación incluirá áreas de almacenamiento con estanterías y sistemas de gestión de inventario, zonas de reparación y distribución equipadas con estaciones de trabajo y áreas de carga y descarga. También se habilitarán oficinas para supervisar las operaciones, con soluciones de iluminación y conectividad para mejorar la eficiencia. El objetivo es transformar la vivienda en un espacio comercial eficiente y bien organizado, adecuado para las necesidades operativas.
Descripción: Un proyecto ejecutivo en arquitectura es un conjunto de planos y especificaciones técnicas que guían la construcción de un edificio. Incluye detalles arquitectónicos, estructurales y eléctricos, asegurando el cumplimiento de las normativas. Proporciona la información necesaria para la cotización y ejecución de la obra, siendo esencial para garantizar la calidad y el éxito del proyecto.
El proyecto CINDI es un centro de investigación y difusión en Manzanillo, Colima, dedicado a la protección de la fauna marina y terrestre. Su diseño contemporáneo, elevado sobre pilotes, minimiza el impacto ambiental y utiliza materiales sostenibles. Incluye planos arquitectónicos, topográficos e instalaciones para garantizar su funcionalidad y sostenibilidad. Además, el centro busca educar y sensibilizar a la comunidad sobre la conservación del medio ambiente, integrándose armoniosamente con el paisaje local.
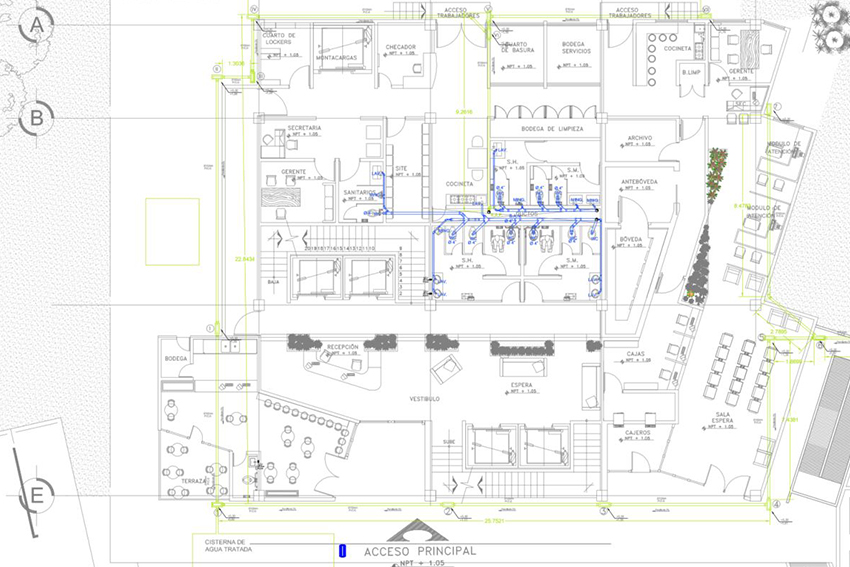
El objetivo del proyecto es crear un ambiente de trabajo moderno y eficiente, adaptado a las necesidades de los clientes, fomentando la productividad y el bienestar de los usuarios. Se han considerado especialidades como ingeniería hidráulica, sanitaria y eléctrica, así como acabados, herrería y cancelaría, para asegurar el éxito del proyecto. Con un plazo de 12 semanas, se cumplió con todos los hitos establecidos y se completó exitosamente, cumpliendo las expectativas del cliente. Este proyecto refleja nuestra capacidad técnica, compromiso con la calidad y disposición para enfrentar nuevos desafíos e innovar en la creación de espacios.
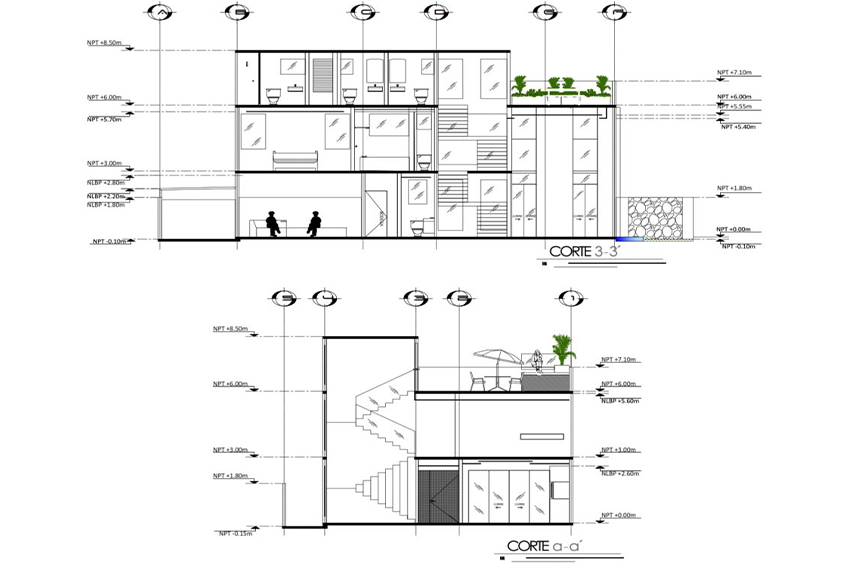
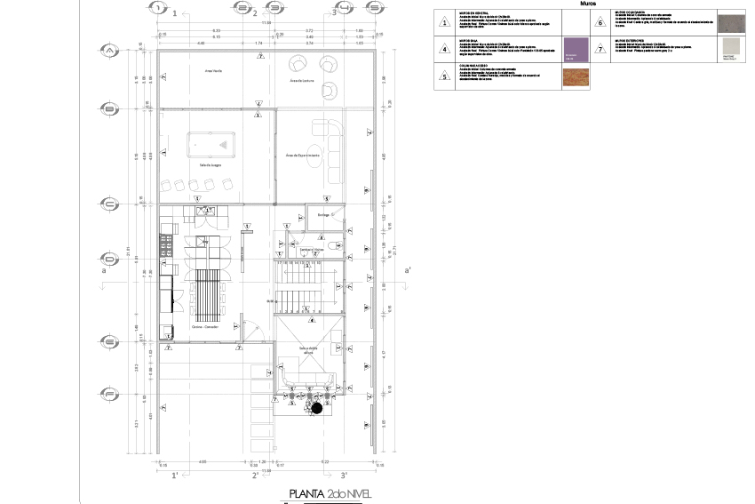
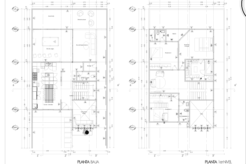
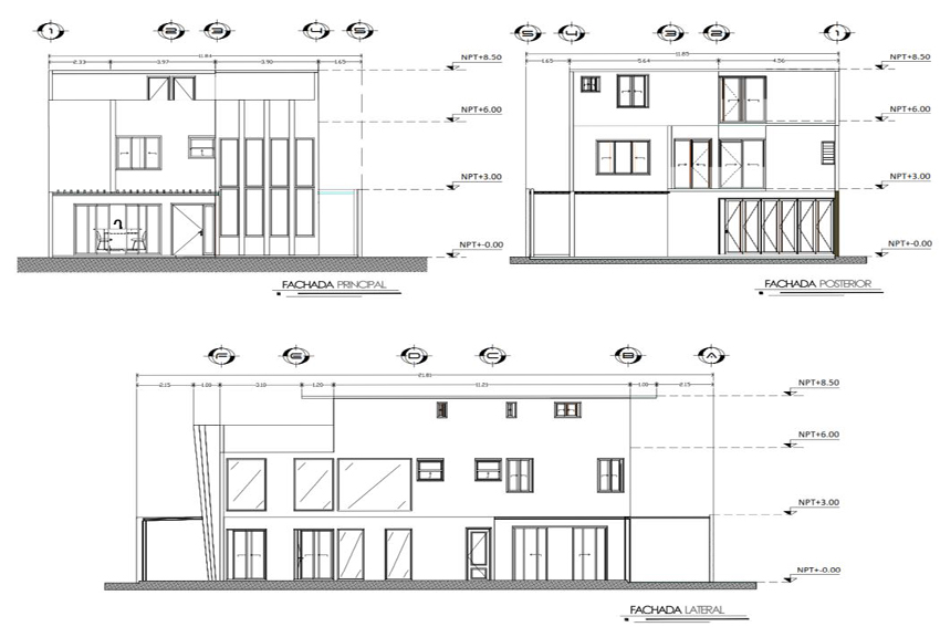
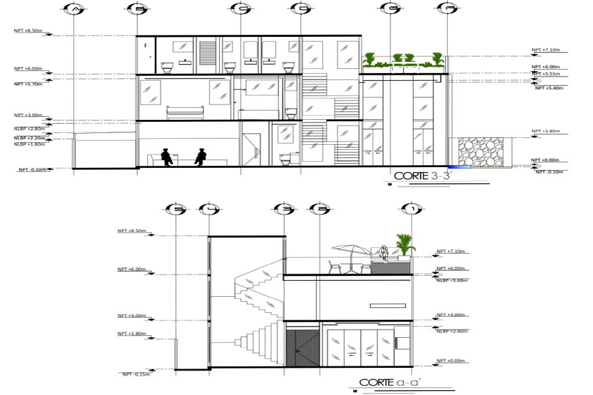
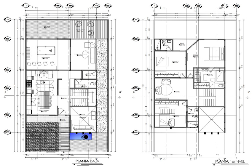
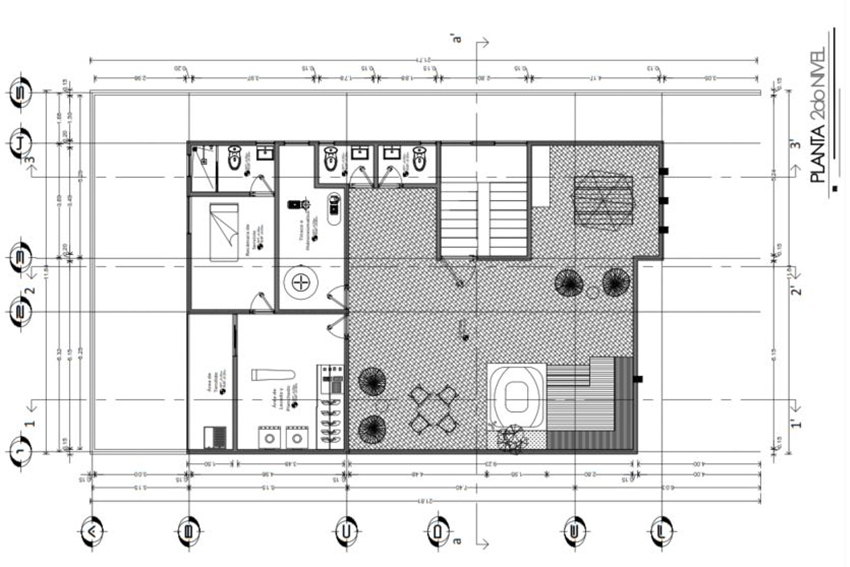
El proyecto consiste en una vivienda residencial en San Miguel de Allende, diseñada con un enfoque minimalista que se integra perfectamente con el entorno y sigue las regulaciones del fraccionamiento. La vivienda destaca por su arquitectura exterior e interior, utilizando acabados monocromáticos para crear un ambiente sereno y elegante, reflejando el estilo de vida de los habitantes. Se elaboraron diversos planos técnicos, incluyendo arquitectónicos, topográficos, de acabados y renders en 3D para visualizar el resultado final.
El proyecto Treka es un centro de tratamiento de salud mental que prioriza el bienestar de los pacientes mediante un diseño que integra espacios interiores y exteriores, con materiales traslúcidos y techos verdes. Enfocado en la sustentabilidad y el respeto al entorno, el centro conecta sus espacios a través de puentes, creando un ambiente de sanación. Los planos técnicos incluyen diseño arquitectónico, circulación e instalaciones sustentables. Treka busca promover la recuperación emocional de los pacientes, respetando su dignidad y fomentando su conexión con la naturaleza.
Un presupuesto de construcción es una estimación detallada de los costos necesarios para completar un proyecto arquitectónico, incluyendo materiales, mano de obra, servicios, equipos, permisos y una reserva para imprevistos. Su objetivo es controlar los gastos y asegurar que el proyecto se mantenga dentro del presupuesto establecido.
La gerencia de obra es el proceso de planificación, ejecución y control de proyectos de construcción, coordinando recursos humanos, materiales y financieros para cumplir con plazos y presupuestos. Supervisa las actividades en el sitio, asegurando la calidad y seguridad, y resuelve problemas mientras mantiene comunicación con todas las partes involucradas. Su función es esencial para garantizar el éxito y la eficiencia del proyecto.
La gerencia de obra es esencial en el diseño de un proyecto que crea espacios privados y áreas flexibles, garantizando que se cumplan los objetivos establecidos. En un proyecto de 2,000 m² distribuidos en cuatro niveles de 500 m² cada uno, la planificación integral y la optimización de recursos son clave para mantener el proyecto dentro del presupuesto y los plazos. La gerencia asegura que todos los aspectos cumplan con las normativas locales, facilita la toma de decisiones rápidas y efectivas, y está preparada para realizar ajustes en tiempo real ante imprevistos. Además, se realiza una evaluación continua para identificar áreas de mejora y asegurar el cumplimiento de los estándares de calidad.
La construcción es el proceso de crear estructuras y edificaciones, abarcando desde la planificación hasta la finalización del proyecto. Implica la coordinación de recursos humanos, materiales y técnicas para cumplir con los estándares de calidad y normativas, transformando ideas en espacios funcionales y estéticamente agradables.
El proyecto de diseño y construcción para una vivienda de 30 m² en Avenida Parque de las Estrellas se centró en optimizar el espacio con un enfoque en funcionalidad y estética. Se diseñó un baño accesible para personas con discapacidad, cumpliendo con las normativas, y se incorporó una bodega para almacenamiento adicional. También se construyó un baño de visitas para las áreas comunes. El proyecto mejoró la funcionalidad de la vivienda, manteniendo un alto estándar estético y soluciones innovadoras.
El proyecto de remodelación abarcó una vivienda de 120 m² en planta baja y 100 m² en planta alta, con ajustes en cuatro recámaras, dos baños, cocina y dos patios. Se realizaron modificaciones en las instalaciones siguiendo guías técnicas para garantizar eficiencia y cumplimiento de estándares. La selección de acabados se hizo en colaboración con el cliente, asegurando que se cumpliera con sus expectativas estéticas. El enfoque del proyecto fue optimizar la funcionalidad y mejorar la estética y el confort del hogar, adaptando los espacios a las necesidades y gustos del cliente.